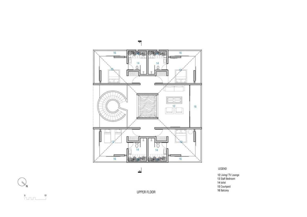
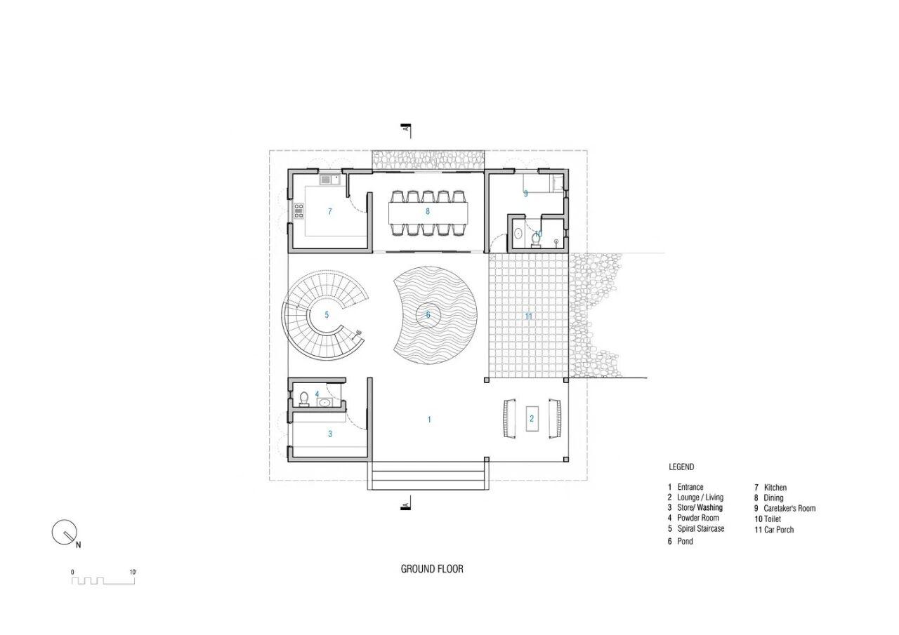
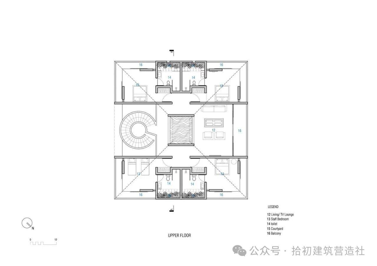
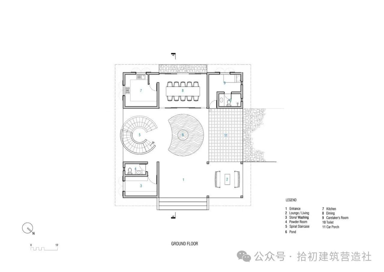
国外住宅案例分享|贾夫纳风力发电园的员工宿舍。 🏡地点:斯里兰卡 🏡建筑师:Palinda Kannangara 🏡实景图/平面图
国外住宅案例分享|贾夫纳风力发电园的员工宿舍。 🏡地点:斯里兰卡 🏡建筑师:
城界蓝图绘筑师
2025-10-01 13:16:51
0
阅读:0